Zum Hauptinhalt springen
Riedbrugg
Wohnungen
Grundrisse Erdgeschoss
Grundrisse 1. Obergeschoss
Grundrisse 2. Obergeschoss
Grundrisse 3. Obergeschoss
Untergeschoss
Fassadenansichten
Ettiswil
Kontakt
Downloads
Riedbrugg
Wohnungen
Grundrisse Erdgeschoss
Grundrisse 1. Obergeschoss
Grundrisse 2. Obergeschoss
Grundrisse 3. Obergeschoss
Untergeschoss
Fassadenansichten
Ettiswil
Kontakt
Downloads
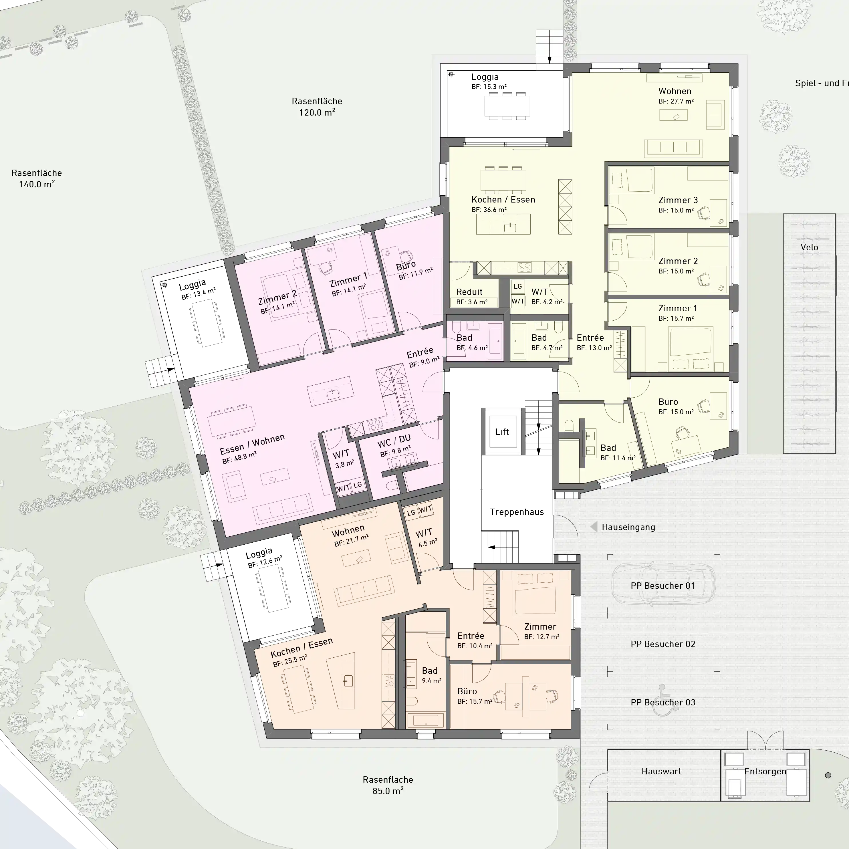
Erdgeschoss
Übersicht
Nr.
Zimmer
NWF
Preis CHF
Grundriss
WHG 001
3½-Zimmer
99.9 m
2
650'000,–
WHG 001
WHG 002
4½-Zimmer
116.1 m
2
850'000,–
WHG 002
WHG 003
5½-Zimmer
161.9 m
2
950'000,–
WHG 003
Tiefgaragenplatz
40'000.–
UG/ESTH
frei
reserviert
verkauft
Ansicht Nordwest
Ansicht Südost
Wohnung 001
3½-Zimmer
Nettowohnfläche 99.9 m
2
Loggia 12.6 m
2
Rasenfläche 85 m
2
1 Nasszelle
Reduit mit Waschmaschine/Tumbler
Anfrage
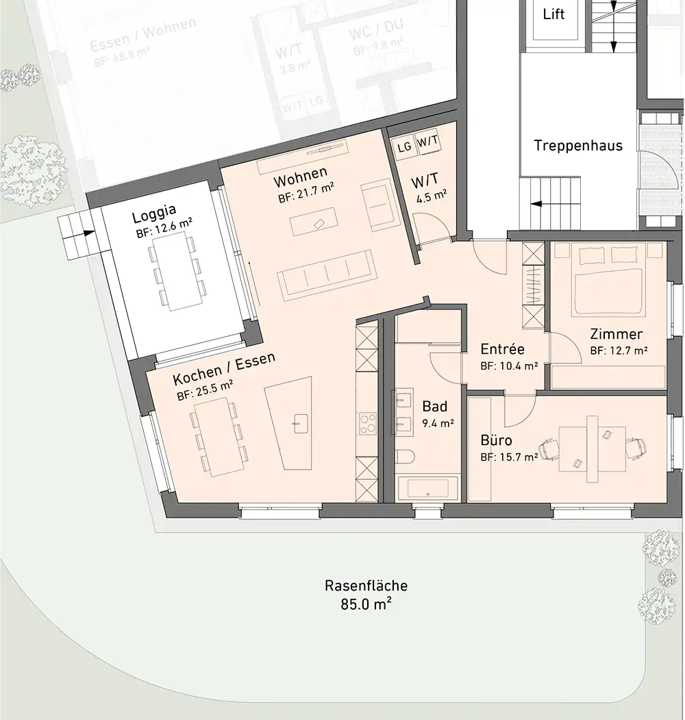
Wohnung 002
4½-Zimmer
Nettowohnfläche 116.1 m
2
Loggia 13.4 m
2
Rasenfläche 140 m
2
2 Nasszellen
Reduit mit Waschmaschine/Tumbler
Anfrage
Wohnung 003
5½-Zimmer
Nettowohnfläche 161.9 m
2
Loggia 15.3 m
2
Rasenfläche 120 m
2
2 Nasszellen
Reduit neben der Küche
sep. Raum mit Waschmaschine/Tumbler
Anfrage
Weitere Grundrisse
Erdgeschoss
mehr …
1. Obergeschoss
mehr …
2. Obergeschoss
mehr …
3. Obergeschoss
mehr …
Untergeschoss/Einstellhalle
mehr …